欢迎来到上海装潢网
    上海吉美建筑装饰工程有限公司闵行分公司
    会员订单
    17条
    24661 全站排名第19
    联系电话:
    400-118-8580
    店铺浏览量:
    1382
    公司位置:
    水清路345号2楼
    缔造舒适家居
    微信分享
    在线预约
    上海吉美建筑装饰工程有限公司闵行分公司
    网络监督单位
    预约电话:
    400-118-8580
    在线:
    2024-08-23 (10天前)
    预约提交成功
    客服人员将会与您联系,请保持手机畅通
    查询热线400-118-8580
    上海吉美建筑装饰工程有限公司(简称:吉美装饰)是目前上海较具规模的建筑装饰公司之一,荣获由上海市建委颁发的施工设计一体化二级资质单位!上海名牌企业,家装一级资质,吉美装饰总公司位于上海市虹口区大柏树并在其他多个片区及上海周边城市的核心地段分设了分公司:浦东张江、闵行、普陀、松江新城、青浦、奉贤、嘉定、周浦、崇明、南汇、金山、昆山、合肥,真正做到了“好装修,就
    查看更多
    水清路345号2楼
    联系电话:400-118-8580
    shzh@shzh.net
    QQ在线: 2746349253
    即刻预约到店
    工地全程播报 更多
    施工中
    泥木阶段
    一周前更新
    播报: 11
    浏览: 460
    业主:
    于先生
    房型:
    住宅公寓-小户型
    承包:
    半包
    预算:
    12.98万
    面积:
    79.9㎡
    静安区
    施工:
    上海吉美建筑装饰工程有限公司闵行分公司
    详情
    朱月超 (装潢网巡视员) 说:
    一周前
    发布于
    APP
    [泥木阶段] 恭喜干先生本次泥木验收已经通过,厨房间、卫生间墙、地砖平整度达标,空鼓率在1%以下,淋浴房的,斜坡符合要求,木工吊顶平整,干壁钉距离小于30公分(但有几处部分干壁钉没有,现场已经交代好)房间地面平整度达标
    共21图
    详情
    上海吉美建筑装饰… (装修公司) 说:
    1个月前
    发布于
    电脑端
    [泥木阶段] 业主干先生家已进入木工吊顶阶段,使用的材料是轻钢龙骨石膏板吊顶。吊顶与后续的定制柜体的安装息息相关,与业主确定定制家具的最后尺寸与预留电源的点位的最终确定,现场进行动态调整,以保证与后续工作能够有条不紊的进行。
    详情
    上海吉美建筑装饰… (装修公司) 说:
    2个月前
    发布于
    电脑端
    [泥木阶段] 业主干先生家的所有墙面已经粉刷完毕。在粉刷准备阶段,搅拌水泥砂浆过程中,添加相应比例的多功能乳液,可以有效减少新粉刷墙面产生空鼓、开裂等现象。粉刷工程结束之后,我们紧接着水电工序阶段。
    官方客服
    装潢网
    干先生
    业主
    上海吉美建筑…
    装修公司
    朱月超
    装潢网巡视员
    方飞
    泥工
    丁成伟
    水电工
    方家河
    泥工
    胡世贵
    敲墙师傅
    施昆
    门店经理
    朱正武
    设计师
    朱永林
    项目经理
    郭祥
    木工
    已登记12人
    施工中
    油漆阶段
    播报: 8
    浏览: 556
    业主:
    祝先生
    房型:
    住宅公寓-小户型
    承包:
    半包
    预算:
    12万
    面积:
    75㎡
    长宁区
    施工:
    上海吉美建筑装饰工程有限公司闵行分公司
    详情
    上海吉美建筑装饰… (装修公司) 说:
    3个月前
    发布于
    电脑端
    [油漆阶段] 2024年5月6日,业主祝先生家里正式开工了!我们由衷感谢业主对于我们的信任,在此,吉美装饰恭祝先生业主雅居开工大吉!!!在接下来的合作中,我们将与您保持密切沟通,及时反馈施工进度,以确保最终的成果完美符合您的期待。相信我们的专业团队将为您带来满意的装修体验!
    详情
    朱月超 (装潢网巡视员) 说:
    3个月前
    发布于
    APP
    [油漆阶段] 祝先生恭喜你本次水电验收已通过,电线走大孤弯,水、电管分开,强丶弱电管分开,符合行业标准,可以进行下一阶段施工
    共14图
    详情
    上海吉美建筑装饰… (装修公司) 说:
    1个月前
    发布于
    电脑端
    [油漆阶段] 祝先生家磁砖铺贴已经完成,厨房间是使用的是800地砖上墙,采用享历双组份背胶辅料铺贴,在其柜体背后选用隐蔽砖进行铺贴,在柜体安装后则全部遮蔽。卫生间为了方便进行排水,采用小砖按坡度铺贴,在下水部份采用更细致坡度铺贴,加快水流速度。
    官方客服
    装潢网
    祝先生
    业主
    上海吉美建筑…
    装修公司
    朱月超
    装潢网巡视员
    方飞
    泥工
    胡世贵
    敲墙师傅
    丁成伟
    水电工
    郭祥
    木工
    汪家兵
    油漆工
    施昆
    门店经理
    葛云祥
    设计师
    施国弟
    项目经理
    已登记12人
    企业资质 更多
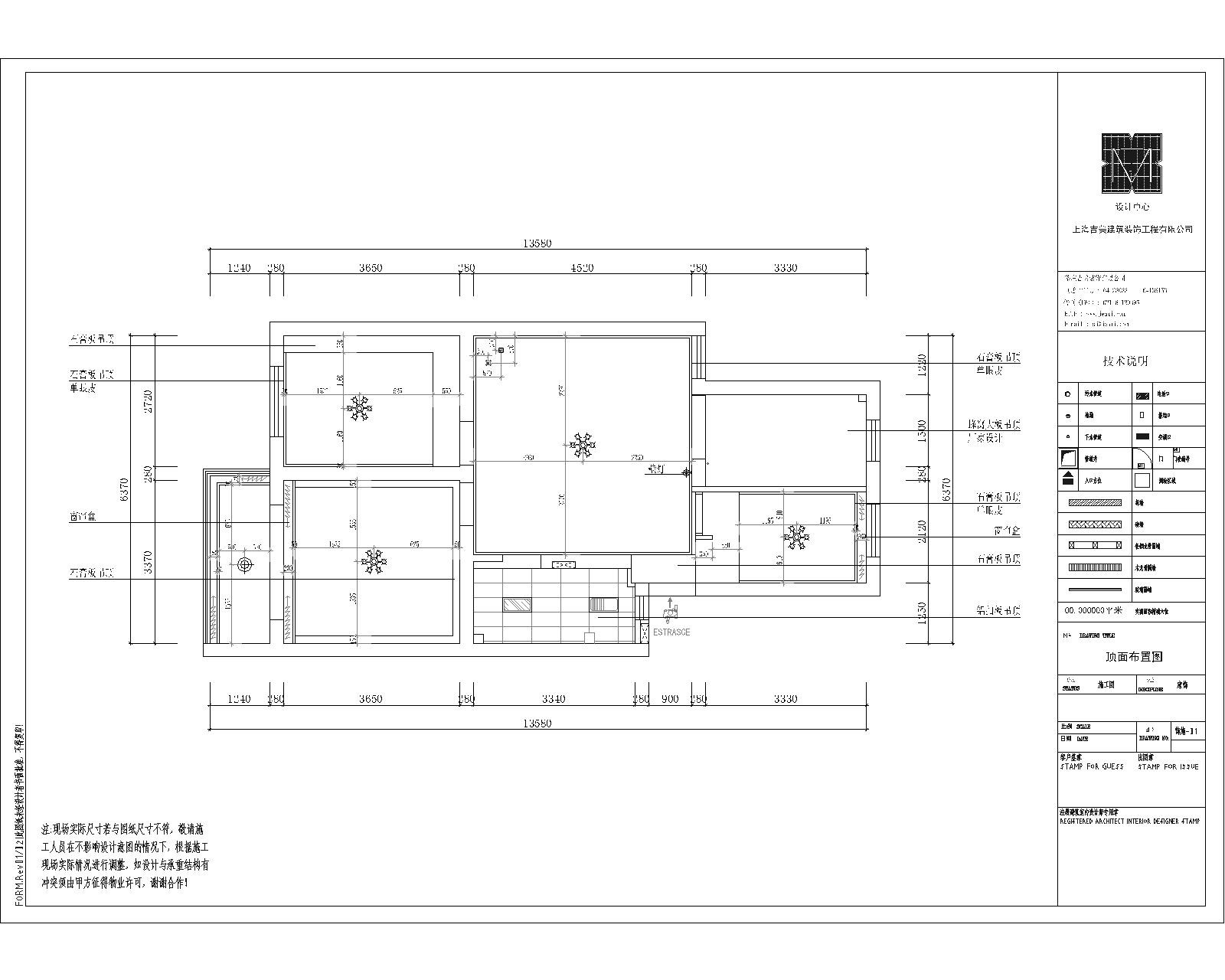
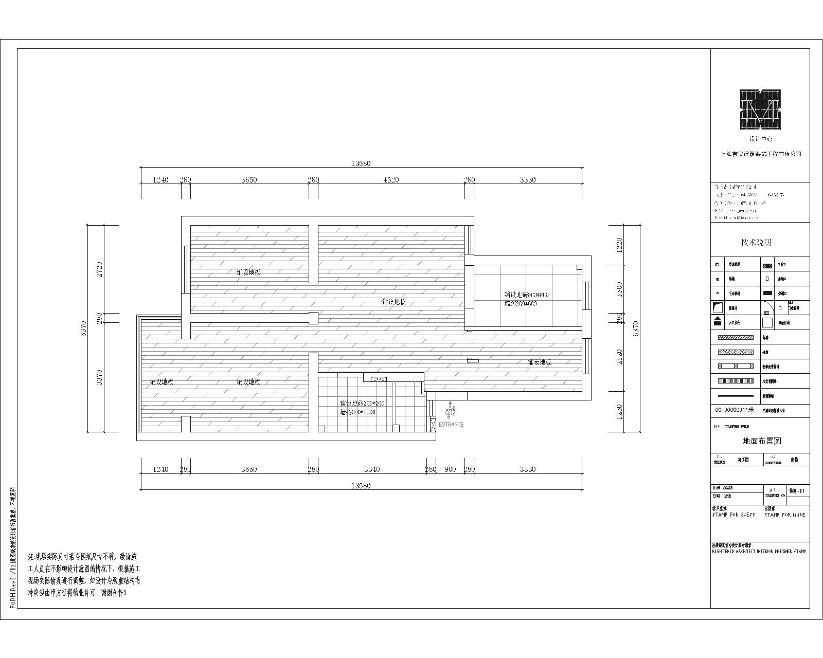
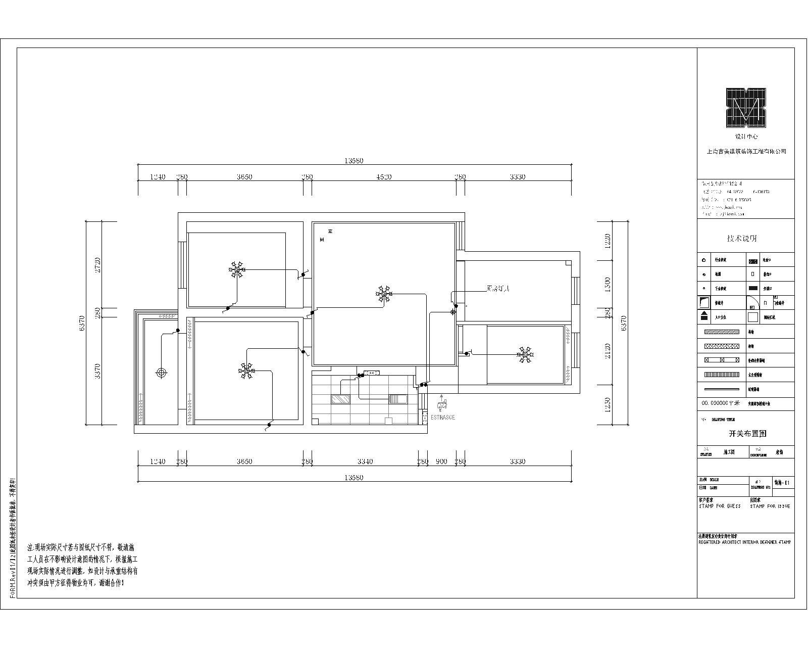
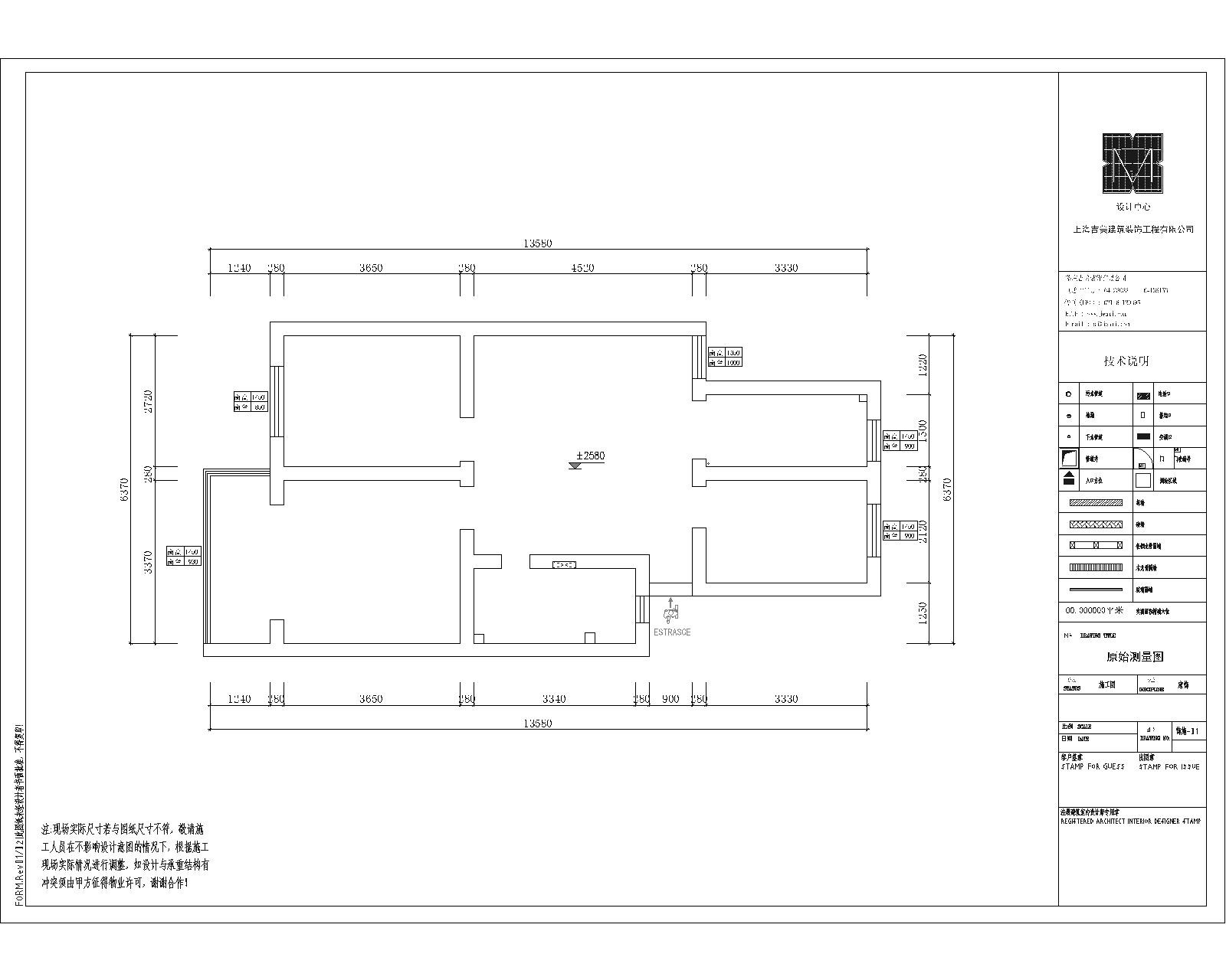
    设计案例 更多
    设计团队
    更多
    施昆
    店长
    孙建国
    设计总监
    葛云祥
    首席设计师
    宗艳武
    首席设计师
    朱正武
    设计师助理
    施工团队
    更多
    朱永林
    项目经理
    吴开胜
    项目经理
    朱永献
    项目经理
    施国弟
    项目经理
    候书法
    项目经理
    访客留言