欢迎来到上海装潢网
    上海爱申建筑装饰工程有限公司
    会员订单
    46条
    35278 全站排名第9
    联系电话:
    400-118-8580
    店铺浏览量:
    2424
    公司位置:
    松江区中山二路131号
    专注家装,品质生活
    微信分享
    在线预约
    上海爱申建筑装饰工程有限公司
    网络监督单位
    预约电话:
    400-118-8580
    在线:
    2024-07-16 (2个月前)
    预约提交成功
    客服人员将会与您联系,请保持手机畅通
    查询热线400-118-8580
    上海爱申建筑装饰工程有限公司是一家成立于2019年1月4日的综合性装饰企业,同时也是上海装潢网的网络监督单位之一。公司的运营模式和服务特点包括:严格的第三方工地播报管理:确保工程进度的透明性和可靠性。合同预算全过程施工前审核:在施工开始前对预算和合同进行严格审核,确保质量和成本控制。室内设计、施工、建材一站式服务:提供从设计到施工再到建材选择的全方位服务。主
    查看更多
    松江区中山二路131号
    联系电话:400-118-8580
    shzh@shzh.net
    QQ在线: 2746349253
    即刻预约到店
    工地全程播报 更多
    施工中
    泥木阶段
    两天前更新
    播报: 8
    浏览: 415
    业主:
    颜先生
    房型:
    公寓
    承包:
    半包
    预算:
    10.16万
    面积:
    80㎡
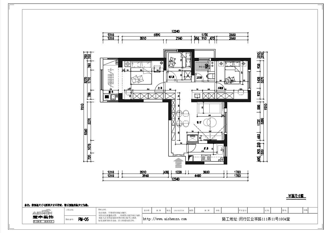
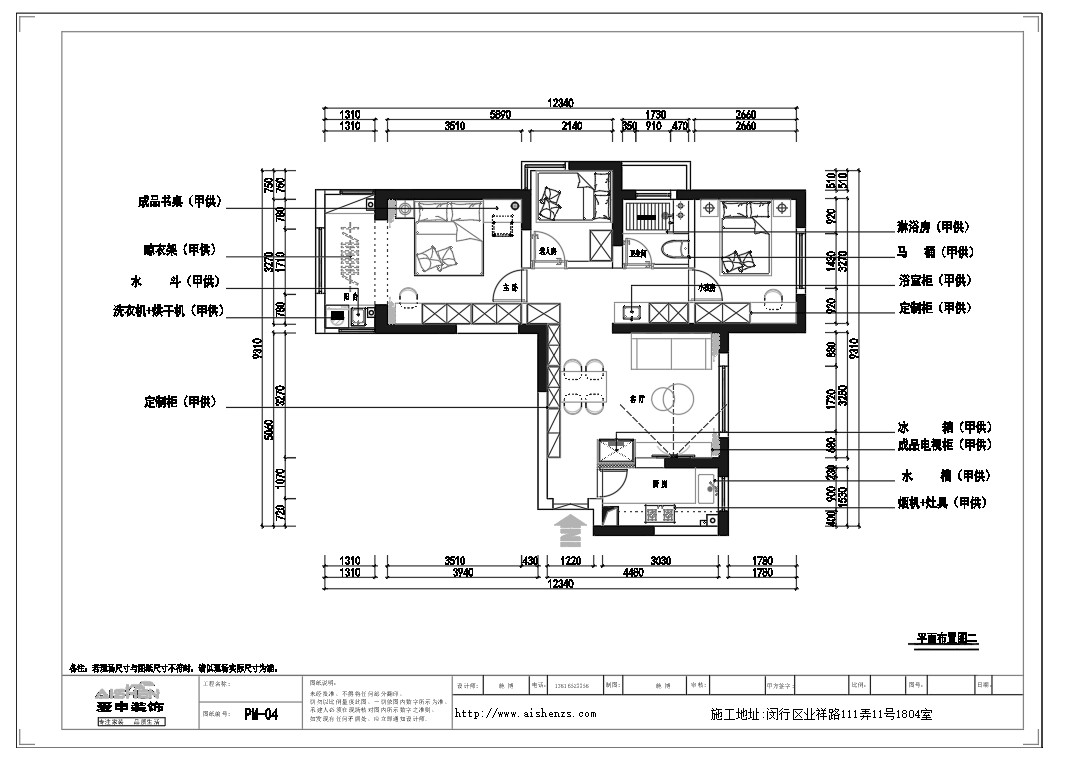
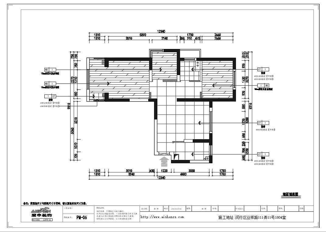
    闵行区
    施工:
    上海爱申建筑装饰工程有限公司
    详情
    朱月超 (监理) 说:
    半个月前
    发布于
    APP
    [泥木阶段]
    详情
    朱月超 (监理) 说:
    半个月前
    发布于
    APP
    [泥木阶段] 恭喜颜先生本次水电验收通过,冷热水管分开,距离大于10公分以上,强弱电线管分开,距离大于`30公分,大弯工艺,下水`管有斜度达标,线路走向清晰,强电箱单片开关分配合理,水管、线管固定距离小于`30公分。可以进行下一阶段施工
    共16图
    详情
    上海爱申建筑装饰… (装修公司) 说:
    2个月前
    发布于
    电脑端
    [泥木阶段] 非常感谢颜先生一家对我们爱申装饰的深深信赖。我们深知这份信任来之不易,也倍感荣幸。经过五次线下的深入沟通,我们共同为颜先生的家庭装修描绘出了理想的蓝图。7月10日的下午,我们在装潢网邱老师的见证下,正式签约了施工合同。这不仅是一份合同,更是我们共同承诺的象征,我们将用专业与热情,将颜先生的家居梦想变
    官方客服
    装潢网
    颜先生
    业主
    上海爱申建筑…
    装修公司
    朱兵
    泥工
    褚东凤
    敲墙师傅
    苏乐华
    水电工
    陈志平
    木工
    胡德兵
    泥工
    陈高欣
    油漆工
    施发洋
    材料人员
    施博
    门店经理
    朱月超
    监理
    已登记12人
    施工中
    泥木阶段
    12小时前更新
    播报: 6
    浏览: 356
    业主:
    王平
    房型:
    住宅公寓
    承包:
    半包
    预算:
    11.3万
    面积:
    84㎡
    宝山区
    施工:
    上海爱申建筑装饰工程有限公司
    详情
    朱月超 (监理) 说:
    半个月前
    发布于
    APP
    [泥木阶段] 恭喜王女士本次水电验收通过,每路线路分开清晰,强、弱电分开并做屏蔽,冷热水管分开,大弯工艺,卫生间新做做等电位,符合行业标准要求。可以进行下一阶段施工
    共14图
    详情
    上海爱申建筑装饰… (装修公司) 说:
    2个月前
    发布于
    电脑端
    [泥木阶段] 经过小半年的深入交流与探讨,我们深感荣幸,因为王女士的信任和选择,让我们爱申装饰有机会参与到她家的装修工程中。每一次的沟通,都让我们更加了解王女士的期待与需求,也让我们更加明确装修的方向和风格。2024年7月8日下午在装潢网的公正见证下,我们与王女士顺利签约,这不仅仅是一份合同,更是我们共同打造美好
    详情
    官方客服 (装潢网) 说:
    2个月前
    发布于
    电脑端
    [泥木阶段] 业主王平的装修工地已成功创建,施工企业为上海爱申建筑装饰工程有限公司,播报须知:为了评比最美工地,所有施工人员须参与到播报中,播报图片要求清晰,并附加文字说明,让装修小白也能一目了然,积极播报,更好的体现工艺的专业性,取得业主的好评是我们服务的目标,每个阶段不得少于两次播报,装潢网巡视员会对工地和播
    官方客服
    装潢网
    王平
    业主
    上海爱申建筑…
    装修公司
    朱月超
    监理
    施健
    油漆工
    陈志平
    木工
    施发洋
    材料人员
    盛四军
    泥工
    袁小亮
    水电工
    朱兵
    泥工
    褚东风
    敲墙师傅
    已登记11人
    施工中
    泥木阶段
    两天前更新
    播报: 7
    浏览: 470
    业主:
    孔女士
    房型:
    公寓房
    承包:
    半包
    预算:
    12.8万
    面积:
    90㎡
    静安区
    施工:
    上海爱申建筑装饰工程有限公司
    详情
    上海爱申建筑装饰… (装修公司) 说:
    2个月前
    发布于
    电脑端
    [泥木阶段] 非常感谢孔女士对我们爱申装饰的信任,我们一定会尽心尽力为业主提供优质的装修服务。我们将以诚信、专业、创新、共赢的服务理念,为业主提供从设计到施工到售后的一站式服务。我们会认真听取业主的意见和建议,不断优化我们的服务,确保业主的满意度。我们相信,通过我们的努力和合作,业主的家里一定会焕发出新的生机和活
    详情
    朱月超 (监理) 说:
    2个月前
    发布于
    APP
    [泥木阶段] 孔女士您好,恭喜本次水电验收已经通过,水管、电线管分开走,强丶弱电线管分开大30公分,强、弱做屏蔽,顶面电线管在上,水管在下面,距离大于10公分,下水管有一处在现场已经交代好(改好拍照片上传施工群)其它下水管道正常,达到行业标准,可以进行下一阶段施工
    共15图
    详情
    朱月超 (监理) 说:
    两天前
    发布于
    APP
    [泥木阶段] 恭喜孔女士本次泥、木验收已通过,墙、地砖平整度达标,空鼓率在0.5%以下,(阳台有3片地砖须要整改),木工吊顶平整度达标,留缝3毫米,90度角是整板工艺,找平地面平整度达标,可以进行下一阶段施工
    共24图
    官方客服
    装潢网
    孔女士
    业主
    上海爱申建筑…
    装修公司
    施博
    工程经理
    陈高欣
    油漆工
    盛四军
    泥工
    陈志平
    木工
    袁小亮
    水电工
    朱兵
    泥工
    褚东风
    敲墙师傅
    朱月超
    监理
    已登记11人
    企业资质 更多
    设计案例 更多