欢迎来到上海装潢网
(业主)
邱宣民(女士)
|
房屋类型:
|
住宅公寓-小户型
|
承包方式:
|
半包
|
|
预算金额:
|
6.67万元
|
房屋面积:
|
75㎡
|
|
开工日期:
|
2022-10-28
|
完工日期:
|
2023-01-10
|
|
装修风格:
|
现代简约
|
工地编号:
|
221026241
|
(施工)
上海侨鸿建筑装潢工程有限公司
联系人:
张小胜
总经理
联系电话:
400-118-8580
公司地址:
浦东新区张杨北路1933弄2号401室(6号线地铁东靖站对面东旭晶座4F),4001389968,张先生
口碑值:
43216
全站排名第6
参与人员
官方客服
装潢网
邱宣民(女士)
业主
上海侨鸿建筑装潢工程有限公司
装修公司
纪文宝
第三方监理
陈光力
项目经理
张鸿飞
策划
赵银月
设计师
张厚彪
水电工
节点播报
竣工阶段
上海侨鸿建筑装潢工程有限公司
(装修公司)
2023-05-17 17:18:35
发布于
电脑端
:
凉城路工程在装潢网的监督下已完成竣工,简约小清新风格,后期侨鸿装饰会继续为您提供更优质的服务,用心做事,不将就,有讲究,做有态度的装修,坚持100%工程直管绝不外包,坚持终身售后承诺 客户的满意是我们最大的追求,后期有什么问题可以直接联系我们400-138-9968 15921228878,交付才是我们服务的开始
水电阶段
上海侨鸿建筑装潢工程有限公司
(装修公司)
2022-11-22 10:04:58
发布于
电脑端
:
纪监理今日已验收, 瓦工砌墙粉墙中
拆改阶段
上海侨鸿建筑装潢工程有限公司
(装修公司)
2022-11-06 10:27:39
发布于
电脑端
:
拆旧已结束,已和业主定于今日下午水电定位
准备阶段
上海侨鸿建筑装潢工程有限公司
(装修公司)
2022-11-08 11:19:44
发布于
电脑端
:
凉城路项目施工计划表
一、施工计划时间
10月28日—01月10日,73天自然日
10月28日上午开工仪式,拆除工作 首期款:首付款20010元已付
10月28日拆除工作
11月1日砌墙粉刷
11月15日水电工作验收 二期款:11月15日应收25346 元
11月22日闭水试验验收
12月10日泥木工作验收 三期款:12月10日应收20010元
01月07日整体竣工验收 尾款:01月08日应收1334元
二、材料供给
10月30日水泥黄沙进场,墙面粉刷和测量封窗(断桥20天)
11月10日申购水管(2天安装)安排大理石门槛,防盗门安装
11月15日水电验收,申购瓷砖(2天)
11月17日瓦工进场铺贴瓷砖
11月22日闭水试验验收
11月30日木工进场,板材进场
12月10日泥木验收,定制门套、移门、吊顶和变更项目核对收款
12月13日油工进场
12月28日安装洁具,灯具以及定制品安装
01月04日涂料修补
01月07日整体验收
01月08日保洁
感谢业主对我们的信任与支持,我司本着服务第一,质量至上,装修无忧的原则,尽心尽力去做好您家的装修,为您打造理想家,一起期待最后的完成品!有任何问题可以联系我们400-118-8580
一、施工计划时间
10月28日—01月10日,73天自然日
10月28日上午开工仪式,拆除工作 首期款:首付款20010元已付
10月28日拆除工作
11月1日砌墙粉刷
11月15日水电工作验收 二期款:11月15日应收25346 元
11月22日闭水试验验收
12月10日泥木工作验收 三期款:12月10日应收20010元
01月07日整体竣工验收 尾款:01月08日应收1334元
二、材料供给
10月30日水泥黄沙进场,墙面粉刷和测量封窗(断桥20天)
11月10日申购水管(2天安装)安排大理石门槛,防盗门安装
11月15日水电验收,申购瓷砖(2天)
11月17日瓦工进场铺贴瓷砖
11月22日闭水试验验收
11月30日木工进场,板材进场
12月10日泥木验收,定制门套、移门、吊顶和变更项目核对收款
12月13日油工进场
12月28日安装洁具,灯具以及定制品安装
01月04日涂料修补
01月07日整体验收
01月08日保洁
感谢业主对我们的信任与支持,我司本着服务第一,质量至上,装修无忧的原则,尽心尽力去做好您家的装修,为您打造理想家,一起期待最后的完成品!有任何问题可以联系我们400-118-8580
上海侨鸿建筑装潢工程有限公司
(装修公司)
2022-10-28 15:53:22
发布于
电脑端
:
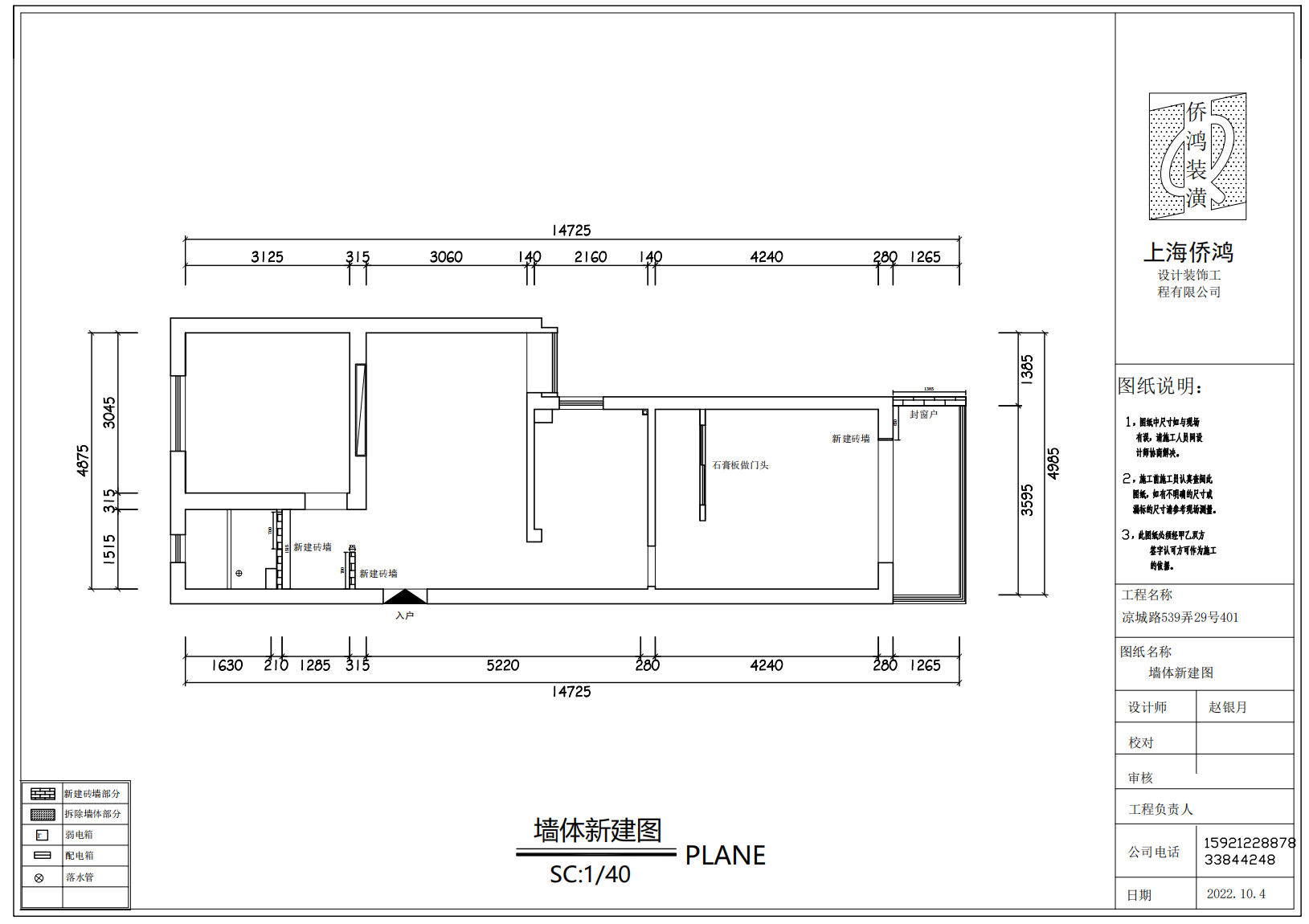
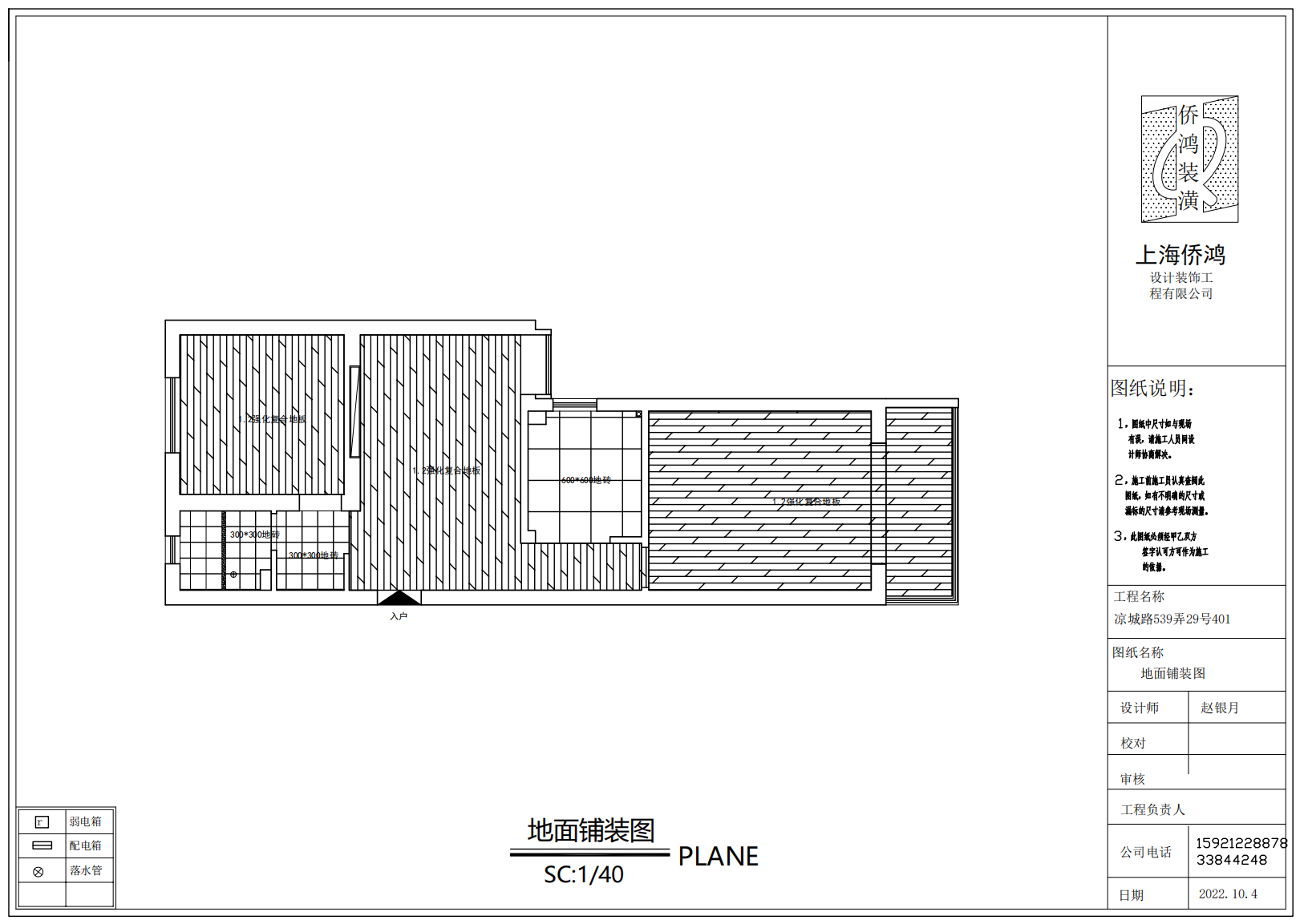
2022年10月28日上午10点28正式开工,装潢网、网络监督单位上海侨鸿装饰项目经理,设计师及业主本人到场,现附上合同,部分施工图纸,效果图正在制作中,侨鸿装饰严格按照施工规范进行施工。公司管理人员也会不定时到工地巡查。相信在第三方的监督下会保质保量的按时交付。
官方客服
(装潢网)
2022-10-26 08:49:59
发布于
电脑端
:
业主邱宣民(女士)的装修工地已成功创建,施工方为上海侨鸿建筑装潢工程有限公司,请及时补充参与人员,并定时播报工地进展。如有疑问请拨打:400-118-8580
