欢迎来到上海装潢网
(业主)
黄先生
|
房屋类型:
|
住宅公寓-小户型
|
承包方式:
|
半包
|
|
预算金额:
|
9.68万元
|
房屋面积:
|
89.1㎡
|
|
开工日期:
|
2022-08-28
|
完工日期:
|
2022-12-08
|
|
装修风格:
|
现代简约
|
工地编号:
|
220814303
|
(施工)
上海侨鸿建筑装潢工程有限公司
联系人:
张小胜
总经理
联系电话:
400-118-8580
公司地址:
浦东新区张杨北路1933弄2号401室(6号线地铁东靖站对面东旭晶座4F),4001389968,张先生
口碑值:
43216
全站排名第6
参与人员
官方客服
装潢网
黄先生
业主
上海侨鸿建筑装潢工程有限公司
装修公司
纪文宝
第三方监理
沈慧
设计师
葛贤亮
项目经理
张红飞
策划
陈光立
工程经理
程武林
水电工
节点播报
竣工阶段
官方客服
(装潢网)
2023-04-17 17:07:54
发布于
电脑端
:
工地状态设置为:已完工
黄先生
(业主)
2023-01-10 15:39:27
发布于
手机端
:
感谢邱老师戴老师纪监理,来工地看了数次,每次来都会发现业主发现不了的问题,在装潢网监督下昨日终于竣工,总体合作还是很愉快!
上海侨鸿建筑装潢工程有限公司
(装修公司)
2023-01-07 13:29:10
发布于
电脑端
:
2023年01月07日上午纪老师与业主已竣工验收完毕,待需要完善的地方处理好就可以交付给业主,业主的满意是我们最大的追求 侨鸿装饰会继续为您提供更优质的服务,用心做事,不将就,有讲究,做有态度的装修,坚持100%工程直管绝不外包,坚持终身售后承诺 有任何需要我们帮助的地方,欢迎随时联系我们哟,祝您生活愉快!
油漆阶段
上海侨鸿建筑装潢工程有限公司
(装修公司)
2022-11-28 14:11:29
发布于
电脑端
:
油漆阶段已结束。定制家具准备入场,后面就是安装工程啦
黄先生
(业主)
2022-11-19 16:49:15
发布于
播报小程序
:
次卧
黄先生
(业主)
2022-11-19 16:48:12
发布于
播报小程序
:
主卧
黄先生
(业主)
2022-11-19 16:47:18
发布于
播报小程序
:
厨房
黄先生
(业主)
2022-11-19 16:46:34
发布于
播报小程序
:
卫生间
黄先生
(业主)
2022-11-19 16:45:45
发布于
播报小程序
:
阳台
黄先生
(业主)
2022-11-19 16:44:26
发布于
播报小程序
:
客餐厅
黄先生
(业主)
2022-11-13 12:08:17
发布于
手机端
:
美缝:卫生间
黄先生
(业主)
2022-11-13 12:07:49
发布于
手机端
:
美缝阳台
黄先生
(业主)
2022-11-13 12:07:23
发布于
手机端
:
美缝:厨房
黄先生
(业主)
2022-11-13 12:06:35
发布于
手机端
:
卫生间
黄先生
(业主)
2022-11-13 12:00:04
发布于
手机端
:
次卧
黄先生
(业主)
2022-11-13 11:59:16
发布于
手机端
:
主卧
黄先生
(业主)
2022-11-13 11:55:08
发布于
手机端
:
阳台
黄先生
(业主)
2022-11-13 11:54:06
发布于
手机端
:
客餐厅
黄先生
(业主)
2022-11-13 11:51:07
发布于
手机端
:
厨房
泥木阶段
纪文宝
第三方监理
2022-11-07 09:12:56
发布于
手机端
:
泥木验收:瓷砖平整度达标,阴阳角方正,没有爆瓷和空鼓现象,木工吊顶规范,个别厨卫顶上穿墙孔要用发泡剂封牢,淋浴房地漏要接进下水管道
纪文宝
第三方监理
2022-11-07 09:02:38
发布于
手机端
:
泥木验收:瓷砖平整度达标,没有爆瓷爆边现象,阴阳角方正,基本没空鼓现象,木工吊顶规范,没什么隐患。厨卫顶上穿墙孔要打发泡封牢,淋浴房地漏要接进下水管。
上海侨鸿建筑装潢工程有限公司
(装修公司)
2022-11-06 14:14:07
发布于
电脑端
:
木工吊顶工程结束,油漆材料准备进场
黄先生
(业主)
2022-10-29 16:45:45
发布于
手机端
:
次卧吊顶
黄先生
(业主)
2022-10-29 16:43:32
发布于
手机端
:
主卧吊顶
黄先生
(业主)
2022-10-29 16:42:12
发布于
手机端
:
客厅吊顶
上海侨鸿建筑装潢工程有限公司
(装修公司)
2022-10-24 10:03:05
发布于
电脑端
:
10月23日侨鸿装饰设计师项目经理与业主黄先生就木工放样定位事宜做一个最终的敲定,明日木工材料到位
黄先生
(业主)
2022-10-23 16:11:24
发布于
手机端
:
次卧
黄先生
(业主)
2022-10-23 16:10:31
发布于
手机端
:
主卧
黄先生
(业主)
2022-10-23 16:09:40
发布于
手机端
:
卫生间
黄先生
(业主)
2022-10-23 16:08:02
发布于
手机端
:
厨房
黄先生
(业主)
2022-10-23 16:07:17
发布于
手机端
:
客餐厅
黄先生
(业主)
2022-10-23 16:06:21
发布于
手机端
:
阳台
上海侨鸿建筑装潢工程有限公司
(装修公司)
2022-10-17 09:35:42
发布于
电脑端
:
泥工墙地砖已铺贴好,现场以保护好,等待木工进场制作柜子吊顶
黄先生
(业主)
2022-10-16 10:31:13
发布于
手机端
:
主次卧:窗
黄先生
(业主)
2022-10-16 10:30:33
发布于
手机端
:
卫生间:砖,窗
黄先生
(业主)
2022-10-16 10:29:26
发布于
手机端
:
厨房:窗
黄先生
(业主)
2022-10-16 10:29:03
发布于
手机端
:
客餐厅:砖
黄先生
(业主)
2022-10-16 10:28:06
发布于
手机端
:
阳台:砖,窗
水电阶段
黄先生
(业主)
2022-10-11 20:03:45
发布于
手机端
:
次卧
黄先生
(业主)
2022-10-11 20:02:59
发布于
手机端
:
主卧
黄先生
(业主)
2022-10-11 20:01:55
发布于
手机端
:
厨房
黄先生
(业主)
2022-10-11 20:00:56
发布于
手机端
:
卫生间
黄先生
(业主)
2022-10-11 20:00:02
发布于
手机端
:
客餐厅
上海侨鸿建筑装潢工程有限公司
(装修公司)
2022-09-27 11:35:07
发布于
电脑端
:
水电纪监理已验收好,瓦工进场施工
黄先生
(业主)
2022-09-24 17:15:39
发布于
手机端
:
次卧
黄先生
(业主)
2022-09-24 17:13:35
发布于
手机端
:
主卧
黄先生
(业主)
2022-09-24 17:12:09
发布于
手机端
:
卫生间
黄先生
(业主)
2022-09-24 17:11:13
发布于
手机端
:
厨房
黄先生
(业主)
2022-09-24 17:10:14
发布于
手机端
:
餐厅
黄先生
(业主)
2022-09-24 17:08:56
发布于
手机端
:
阳台
黄先生
(业主)
2022-09-24 17:08:19
发布于
手机端
:
客厅
黄先生
(业主)
2022-09-17 17:00:44
发布于
手机端
:
次卧:
图一:写字桌
图2,3:床头
图4开关:
图一:写字桌
图2,3:床头
图4开关:
黄先生
(业主)
2022-09-17 16:52:17
发布于
手机端
:
卫生间:淋浴房
黄先生
(业主)
2022-09-17 16:51:47
发布于
手机端
:
卫生间:壁龛
图3高度为90
图3高度为90
黄先生
(业主)
2022-09-17 16:46:11
发布于
手机端
:
厨房中央:
黄先生
(业主)
2022-09-17 16:41:53
发布于
手机端
:
厨房左侧:高度:125cm
黄先生
(业主)
2022-09-17 16:37:49
发布于
手机端
:
厨房:烟道直径20cm
黄先生
(业主)
2022-09-17 16:36:49
发布于
手机端
:
餐厅:冰箱:95cm,高208cm
黄先生
(业主)
2022-09-17 16:35:08
发布于
手机端
:
客厅:
写字桌
图3为槽线高度:87cm
写字桌
图3为槽线高度:87cm
黄先生
(业主)
2022-09-17 16:31:52
发布于
手机端
:
客厅:
电视柜,左距离210cm
右距离129cm
高度213cm
电视柜,左距离210cm
右距离129cm
高度213cm
黄先生
(业主)
2022-09-17 16:30:24
发布于
手机端
:
阳台右侧:
图1: 十字开槽:左距离8.5cm,右距离
图2: 右距离61cm,高度152cm
图1: 十字开槽:左距离8.5cm,右距离
图2: 右距离61cm,高度152cm
黄先生
(业主)
2022-09-17 16:24:17
发布于
手机端
:
阳台左侧
黄先生
(业主)
2022-09-17 11:01:47
发布于
手机端
:
网站点评:
上海侨鸿建筑装潢工程有限公司
(装修公司)
2022-09-13 09:35:29
发布于
电脑端
:
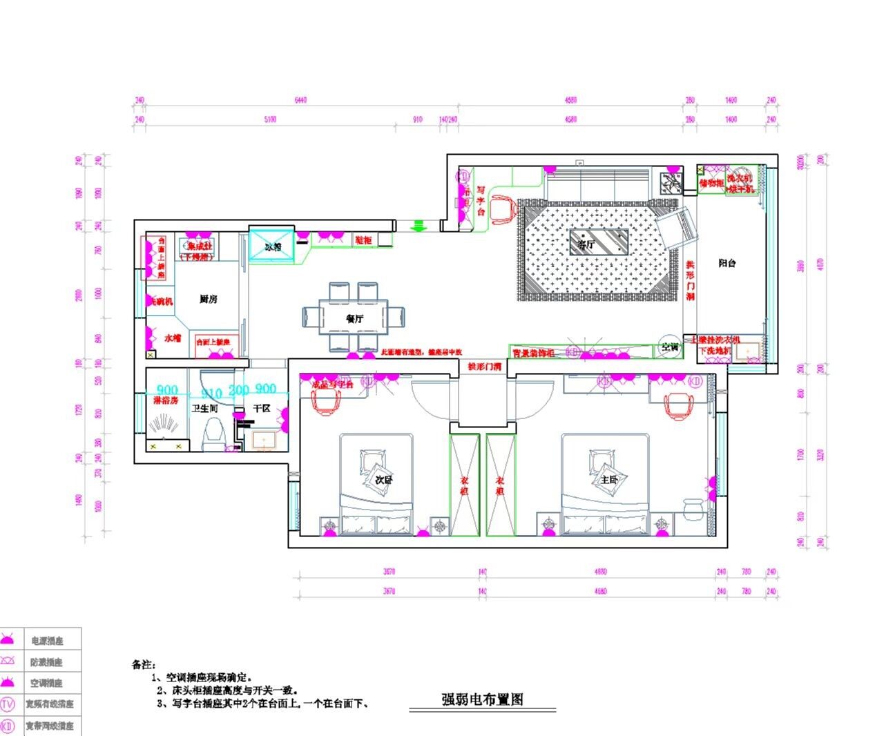
附上水电阶段,泥木阶段施工图纸
上海侨鸿建筑装潢工程有限公司
(装修公司)
2022-09-13 09:31:31
发布于
电脑端
:
瓦工粉刷砌墙已结束,今日水电开槽
黄先生
(业主)
2022-09-12 21:10:55
发布于
播报小程序
:
网站点评:
黄先生
(业主)
2022-09-04 15:54:12
发布于
手机端
:
卫生间
黄先生
(业主)
2022-09-04 15:53:22
发布于
手机端
:
厨房
黄先生
(业主)
2022-09-04 15:52:31
发布于
手机端
:
次卧
黄先生
(业主)
2022-09-04 15:51:40
发布于
手机端
:
主卧
黄先生
(业主)
2022-09-04 15:50:35
发布于
手机端
:
客厅
拆改阶段
上海侨鸿建筑装潢工程有限公司
(装修公司)
2022-09-13 09:27:40
发布于
电脑端
:
拆改工程已结束,瓦工进场粉刷墙面砌墙
黄先生
(业主)
2022-09-04 14:23:18
发布于
手机端
:
垃圾等待明日运送
准备阶段
上海侨鸿建筑装潢工程有限公司
(装修公司)
2022-08-28 14:22:45
发布于
电脑端
:
8月28日上午,上海侨鸿装饰有限公司在闵行区黄先生家举行开工仪式,参与人员业主、设计师沈慧、项目经理葛贤亮,11点38分开工大吉!轻法式奶油风,改造之旅正式开始...
上海侨鸿建筑装潢工程有限公司
(装修公司)
2022-08-24 14:15:44
发布于
电脑端
:
效果图制作完毕,后续施工图正在制作中...
上海侨鸿建筑装潢工程有限公司
(装修公司)
2022-08-24 11:28:22
发布于
电脑端
:
项目施工计划表
一、施工计划时间
8月28日—12月8日,100天自然日
8月28 日上午开工仪式,拆除工作 首期款:首付款29040元已付
8月29日拆除工作
9月06日砌墙粉刷
9月22日水电工作验收 二期款:9月22日应收36784元
9月30日闭水试验验收
10月27日泥木工作验收 三期款:10月27日应收29040元
12月3日整体竣工验收 尾款:12月03日应收1936元
二、材料供给
9月06日水泥黄沙进场,墙面粉刷和测量封窗(断桥20天)
9月13日申购水管(2天安装)安排大理石门槛,防盗门安装
9月22日水电验收,申购瓷砖(2天)
9月25日瓦工进场铺贴瓷砖
9月30日闭水试验验收
10月18日木工进场,板材进场
10月27日泥木验收,定制门套、移门、吊顶和变更项目核对收款
11月1日油工进场
11月20日安装洁具,灯具以及定制品安装
11月27日涂料修补
12月03日整体验收
12月05日保洁
感谢业主对我们的信任与支持,我司本着服务第一,质量至上,装修无忧的原则,尽心尽力去做好您家的装修,为您打造理想家,一起期待最后的完成品!有任何问题可以联系我们400-138-9968
一、施工计划时间
8月28日—12月8日,100天自然日
8月28 日上午开工仪式,拆除工作 首期款:首付款29040元已付
8月29日拆除工作
9月06日砌墙粉刷
9月22日水电工作验收 二期款:9月22日应收36784元
9月30日闭水试验验收
10月27日泥木工作验收 三期款:10月27日应收29040元
12月3日整体竣工验收 尾款:12月03日应收1936元
二、材料供给
9月06日水泥黄沙进场,墙面粉刷和测量封窗(断桥20天)
9月13日申购水管(2天安装)安排大理石门槛,防盗门安装
9月22日水电验收,申购瓷砖(2天)
9月25日瓦工进场铺贴瓷砖
9月30日闭水试验验收
10月18日木工进场,板材进场
10月27日泥木验收,定制门套、移门、吊顶和变更项目核对收款
11月1日油工进场
11月20日安装洁具,灯具以及定制品安装
11月27日涂料修补
12月03日整体验收
12月05日保洁
感谢业主对我们的信任与支持,我司本着服务第一,质量至上,装修无忧的原则,尽心尽力去做好您家的装修,为您打造理想家,一起期待最后的完成品!有任何问题可以联系我们400-138-9968
上海侨鸿建筑装潢工程有限公司
(装修公司)
2022-08-14 15:10:49
发布于
电脑端
:
2022年8月14号,黄先生通过装潢网第三方服务监督机构与上海侨鸿装饰公司签订了装修合同,装潢网邱老师认真的审核了装修报价及装修合同,业主有了装潢网监督装饰企业表示很放心,装潢网同时也安排了监理委的监理老师装潢网巡视员装修过程三次免费节点验收的服务,合同半包价96800万。施工图,效果图正在绘制中,敬请期待。
官方客服
(装潢网)
2022-08-14 15:03:43
发布于
电脑端
:
业主黄先生的装修工地已成功创建,施工方为上海侨鸿建筑装潢工程有限公司,请及时补充参与人员,并定时播报工地进展。如有疑问请拨打:400-118-8580
