欢迎来到上海装潢网
(业主)
曹先生
|
房屋类型:
|
住宅公寓-小户型
|
承包方式:
|
半包
|
|
预算金额:
|
14.6万元
|
房屋面积:
|
83㎡
|
|
开工日期:
|
2022-08-18
|
完工日期:
|
2022-11-18
|
|
装修风格:
|
新中式
|
工地编号:
|
220808120
|
(施工)
上海侨鸿建筑装潢工程有限公司
联系人:
张小胜
总经理
联系电话:
400-118-8580
公司地址:
浦东新区张杨北路1933弄2号401室(6号线地铁东靖站对面东旭晶座4F),4001389968,张先生
口碑值:
43216
全站排名第6
参与人员
官方客服
装潢网
曹先生
业主
上海侨鸿建筑装潢工程有限公司
装修公司
纪文宝
第三方监理
沈慧
设计师
陈光立
项目经理
刘天信
水电工
张红飞
策划
节点播报
竣工阶段
曹先生
(业主)
2022-11-28 06:48:31
发布于
手机端
:
装修完工,老人家很满意,达到了预期的效果,也没什么特别的增项。监理纪老师很认真负责的在三个节点进行监理,一些小瑕疵也及时整改。帮我家装修的泥工师傅,瓦工师傅,木工师傅和油工师傅水平很高,赞一个。感谢张老板和设计师沈慧老师。
上海侨鸿建筑装潢工程有限公司
(装修公司)
2022-11-25 13:37:18
发布于
电脑端
:
11月24日纪老师已竣工验收完毕,待需要完善的地方处理好就可以交付给业主,业主的满意是我们最大的追求
侨鸿装饰会继续为您提供更优质的服务,用心做事,不将就,有讲究,做有态度的装修,坚持100%工程直管绝不外包,坚持终身售后承诺
有任何需要我们帮助的地方,欢迎随时联系我们哟,祝您生活愉快!
侨鸿装饰会继续为您提供更优质的服务,用心做事,不将就,有讲究,做有态度的装修,坚持100%工程直管绝不外包,坚持终身售后承诺
有任何需要我们帮助的地方,欢迎随时联系我们哟,祝您生活愉快!
上海侨鸿建筑装潢工程有限公司
(装修公司)
2022-11-06 10:31:46
发布于
电脑端
:
油漆工程已完成,门套,门板,地板,开关插座已安装好,等待竣工验收,整体保洁,交房给业主
油漆阶段
上海侨鸿建筑装潢工程有限公司
(装修公司)
2022-10-19 15:21:55
发布于
电脑端
:
油漆工滚涂料中,全屋大白,看着很清爽。简单耐看
泥木阶段
上海侨鸿建筑装潢工程有限公司
(装修公司)
2022-09-27 11:48:12
发布于
电脑端
:
泥木工程已结束,油漆工已进场施工,纪监理已验收
上海侨鸿建筑装潢工程有限公司
(装修公司)
2022-09-13 09:56:25
发布于
电脑端
:
视频格式上传不上去,此照片为闭水试验...
上海侨鸿建筑装潢工程有限公司
(装修公司)
2022-09-07 10:19:51
发布于
电脑端
:
防水已做好,等待做闭水试验
水电阶段
上海侨鸿建筑装潢工程有限公司
(装修公司)
2022-09-07 10:16:47
发布于
电脑端
:
水电工程结束,泥工已进场
准备阶段
上海侨鸿建筑装潢工程有限公司
(装修公司)
2022-08-18 13:56:39
发布于
电脑端
:
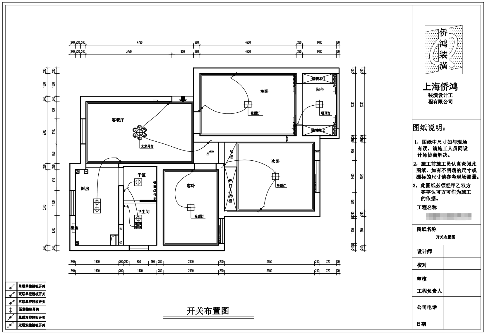
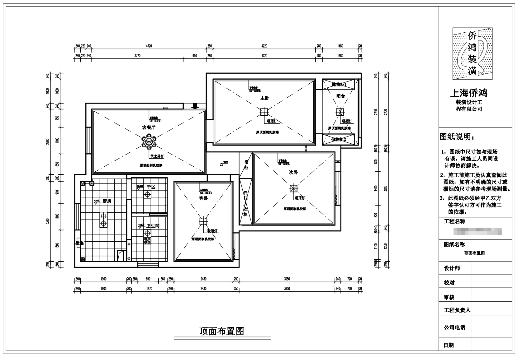
效果图和施工图纸设计师根据业主的生活习惯以及使用需求下完成终稿,新中式风格,老房蜕变今日开启
上海侨鸿建筑装潢工程有限公司
(装修公司)
2022-08-18 13:33:30
发布于
电脑端
:
开工大吉 老房改造,告别生活20多年的环境,重新打造新空间,熟悉的环境,全新的居住体验——2022.8.18 8:58分
上海侨鸿建筑装潢工程有限公司
(装修公司)
2022-08-12 15:25:55
发布于
电脑端
:
博兴路项目施工计划表
一、施工计划时间
8月18日—11月18日,90天自然日
8月18日上午开工仪式,拆除工作 首期款:首付款43800元已付
8月19日拆除工作
8月25日砌墙粉刷
9月15日水电工作验收 二期款:9月15日应收55480元
9月22日闭水试验验收
10月15日泥木工作验收 三期款:10月15日应收43800元
11月13日整体竣工验收 尾款:11月13日应收2920元
二、材料供给
8月25日水泥黄沙进场,墙面粉刷和测量封窗(断桥20天)
9月9日申购水管(2天安装)安排大理石门槛,防盗门安装
9月15日水电验收,申购瓷砖(2天)
9月17日瓦工进场铺贴瓷砖
9月22日闭水试验验收
9月27日木工进场,板材进场
10月15日泥木验收,定制门套、移门、吊顶和变更项目核对收款
10月17日油工进场
11月4日安装洁具,灯具以及定制品安装
11月10日涂料修补
11月13日整体验收
11月15日保洁
感谢业主对我们的信任与支持,我司本着服务第一,质量至上,装修无忧的原则,尽心尽力去做好您家的装修,为您打造理想家,一起期待最后的完成品!有任何问题可以联系我们400-118-8580
一、施工计划时间
8月18日—11月18日,90天自然日
8月18日上午开工仪式,拆除工作 首期款:首付款43800元已付
8月19日拆除工作
8月25日砌墙粉刷
9月15日水电工作验收 二期款:9月15日应收55480元
9月22日闭水试验验收
10月15日泥木工作验收 三期款:10月15日应收43800元
11月13日整体竣工验收 尾款:11月13日应收2920元
二、材料供给
8月25日水泥黄沙进场,墙面粉刷和测量封窗(断桥20天)
9月9日申购水管(2天安装)安排大理石门槛,防盗门安装
9月15日水电验收,申购瓷砖(2天)
9月17日瓦工进场铺贴瓷砖
9月22日闭水试验验收
9月27日木工进场,板材进场
10月15日泥木验收,定制门套、移门、吊顶和变更项目核对收款
10月17日油工进场
11月4日安装洁具,灯具以及定制品安装
11月10日涂料修补
11月13日整体验收
11月15日保洁
感谢业主对我们的信任与支持,我司本着服务第一,质量至上,装修无忧的原则,尽心尽力去做好您家的装修,为您打造理想家,一起期待最后的完成品!有任何问题可以联系我们400-118-8580
官方客服
(装潢网)
2022-08-10 11:18:06
发布于
电脑端
:
8月8日业主曹先生与侨鸿装饰签订了装修施工合同,开工时间定在8月18号上午,现附上合同照片以及平面布置方案,后续施工计划表以及效果图施工图正在绘制中......
网站点评:
上海侨鸿建筑装潢工程有限公司
(装修公司)
2022-08-08 12:14:36
发布于
电脑端
:
2022年8月8号,曹先生通过装潢网第三方服务监督机构与上海侨鸿装饰设计师沈慧签订了装修合同,业主有了装潢网监督装饰企业表示很放心,装潢网同时也安排了监理老师装潢巡视员,装修过程三次免费节点验收的服务,合同全包价14.6万。相信接下来的施工都可以顺顺利利,达到一个满意的装修效果。施工图纸,效果图正在绘制中,敬请期待。
官方客服
(装潢网)
2022-08-08 11:51:32
发布于
电脑端
:
业主曹先生的装修工地已成功创建,施工方为上海侨鸿建筑装潢工程有限公司,请及时补充参与人员,并定时播报工地进展。如有疑问请拨打:400-118-8580
