欢迎来到上海装潢网
(业主)
朱虹
|
房屋类型:
|
住宅公寓-小户型
|
承包方式:
|
半包
|
|
预算金额:
|
14万元
|
房屋面积:
|
86㎡
|
|
开工日期:
|
2022-08-03
|
完工日期:
|
2022-11-03
|
|
装修风格:
|
现代简约
|
工地编号:
|
220801822
|
(施工)
上海金令室内装潢有限公司
联系人:
金令室内装潢
沈总监
联系电话:
400-118-8580
公司地址:
上海市虹口区中山北一路22号
口碑值:
17001
全站排名第32
参与人员
官方客服
装潢网
朱虹
业主
张震亮
业主
上海金令室内装潢有限公司
装修公司
纪文宝
装潢网巡视员
周英杰
设计师
李荣兵
施工队长
张万林
泥工
节点播报
泥木阶段
纪文宝
(装潢网巡视员)
2022-11-16 19:48:18
发布于
手机端
:
泥木验收:施工与设计相符,瓷砖铺贴合格,平整度达标,阴阳角方正,没有爆边和空鼓现象,木工吊顶规范,个别钉距偏大需要补充。
水电阶段
朱虹
(业主)
2022-10-18 14:58:26
发布于
手机端
:
昨日家中地面防水,卫生间防水已做好。工头不在,公公到现场监工
上海金令室内装潢有限公司
(装修公司)
2022-10-17 11:09:10
发布于
电脑端
:
祁连山路工程水电验收已结束,总体装潢网工程监理和业主很满意,也有个别小瑕疵我们也一一定会注意以及更改的,现附上水电走线以及照片。有问题会及时改进
拆改阶段
上海金令室内装潢有限公司
(装修公司)
2022-08-10 09:30:00
发布于
电脑端
:
拆旧已经完成,现场拆旧垃圾已经清走,房屋需要打隔断,红砖进工地,瓦工师傅已就位
网站点评:
上海金令室内装潢有限公司
(装修公司)
2022-08-03 14:06:06
发布于
电脑端
:
8月3日上午,上海金令室内装潢有限公司在宝山区祁连山路2500弄祁连一村张先生家进行开工仪式,参加人员设计师周英杰,施工队长李荣兵,业主张先生、业主父亲都到了现场!开工大吉!在整个工程施工期间,工程施工上无论您有什么需求和问题,请第一时间联系我,我会在第一时间为您解决。 联系电话400-118-8580
准备阶段
上海金令室内装潢有限公司
(装修公司)
2022-08-03 17:10:54
发布于
电脑端
:
一:工期计划时间8月03日——11月03日
工作日 63天
1、8月4日进场拆旧(工期3天)
2、8月10日瓦工进场,砌墙、粉刷墙面
3、8月17日-8月26号水电进场定位、施工、中央空调定位、施工
4、8月27号-9月10号泥工进场贴砖(安排橱柜厂家测量)
5、9月11号-9月20号木工施工(定制家具测量)
6、9月21号-10月15号油漆施工
7、10月16日起先安装地板然后安装门套再安装踢脚线,进行橱柜安装,地板踢脚线安装好开始安装定制 产品。
8、10月31开始墙面修补、自检。
9、11月3号验收交房
二:材料供给 :
(1)8月9日配送材料(砌墙,粉刷),安排瓦工进场砌,粉。
(2)8月18号申购电线、线管、水管(4天安装).安排送大理石门槛(5天)和安装防盗门.(4天)
(3)8月26日水电验收,申购瓷砖(4天送到,加工砖7天)和板材材料(3天)。
(4)9月10日通知测量橱柜(下单后20天).木门(下单后35天).淋浴房(常规15天、金色黑色25天).扣板吊顶(6天)。
(5)9月20日泥木验收合格,申购油漆工材料和石膏线。(3天)
(6)9月20日变更款核对收款,申购地板(7天)洁具五金(4天)周末除外
(7)10月16日后所有外加工产品安次序有序安装
(8)11月3日竣工验收合格,通知保洁(2天)。
首期款:首付款43000元已付
二期款:8月27日应收47000元
三期款:9月20日应收43000元
尾款:11月3日应收7000元
感谢您选择上海金令室内装潢有限公司,我们一定不会辜负业主的信任,有任何问题都可以联系我们400-878-6533
工作日 63天
1、8月4日进场拆旧(工期3天)
2、8月10日瓦工进场,砌墙、粉刷墙面
3、8月17日-8月26号水电进场定位、施工、中央空调定位、施工
4、8月27号-9月10号泥工进场贴砖(安排橱柜厂家测量)
5、9月11号-9月20号木工施工(定制家具测量)
6、9月21号-10月15号油漆施工
7、10月16日起先安装地板然后安装门套再安装踢脚线,进行橱柜安装,地板踢脚线安装好开始安装定制 产品。
8、10月31开始墙面修补、自检。
9、11月3号验收交房
二:材料供给 :
(1)8月9日配送材料(砌墙,粉刷),安排瓦工进场砌,粉。
(2)8月18号申购电线、线管、水管(4天安装).安排送大理石门槛(5天)和安装防盗门.(4天)
(3)8月26日水电验收,申购瓷砖(4天送到,加工砖7天)和板材材料(3天)。
(4)9月10日通知测量橱柜(下单后20天).木门(下单后35天).淋浴房(常规15天、金色黑色25天).扣板吊顶(6天)。
(5)9月20日泥木验收合格,申购油漆工材料和石膏线。(3天)
(6)9月20日变更款核对收款,申购地板(7天)洁具五金(4天)周末除外
(7)10月16日后所有外加工产品安次序有序安装
(8)11月3日竣工验收合格,通知保洁(2天)。
首期款:首付款43000元已付
二期款:8月27日应收47000元
三期款:9月20日应收43000元
尾款:11月3日应收7000元
感谢您选择上海金令室内装潢有限公司,我们一定不会辜负业主的信任,有任何问题都可以联系我们400-878-6533
网站点评:
上海金令室内装潢有限公司
(装修公司)
2022-08-01 15:02:31
发布于
电脑端
:
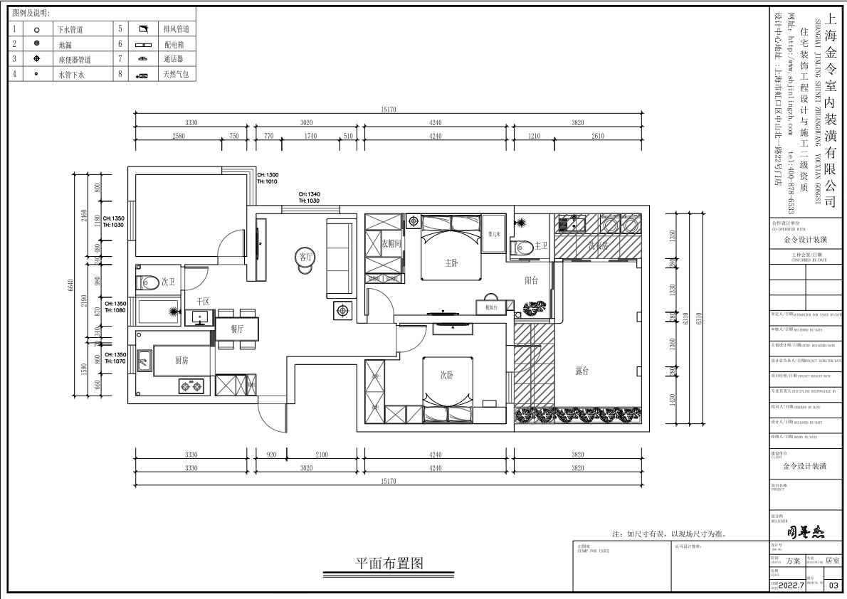
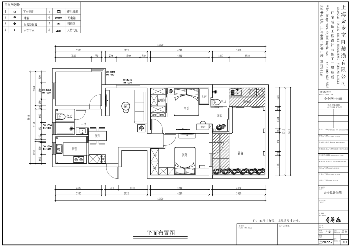
图纸已制作完毕,根据业主的要求,设计师的方案满足了一家人的生活功能需求,二室二厅现代简约风格,干净温馨,等待开工!
网站点评:
上海金令室内装潢有限公司
(装修公司)
2022-08-01 10:06:36
发布于
电脑端
:
2022年7月31号,本公司周英杰设计师与祁连山路2500弄祁连一村18号张先生签订了装修施工合同,施工日期2022年8月3日——2022年11月3日。非常感谢张先生对于本公司的信任,也非常感谢装潢网老师的签约全程陪同。相信接下来的施工都可以顺顺利利,达到一个满意的装修效果。
网站点评:
官方客服
(装潢网)
2022-08-01 09:42:51
发布于
电脑端
:
业主朱虹的装修工地已成功创建,施工方为上海金令室内装潢有限公司,请及时补充参与人员,并定时播报工地进展。如有疑问请拨打:400-118-8580
