欢迎来到上海装潢网
(业主)
施女士
|
房屋类型:
|
住宅公寓-小户型
|
承包方式:
|
半包
|
|
预算金额:
|
6.3万元
|
房屋面积:
|
40㎡
|
|
开工日期:
|
2022-08-05
|
完工日期:
|
2022-11-30
|
|
装修风格:
|
北欧
|
工地编号:
|
220705525
|
(施工)
上海绿通设计装潢有限公司
联系人:
赵德军
法人
联系电话:
400-118-8580
公司地址:
浦东新区东方路1381号base楼301~336(蓝村路)
口碑值:
8
全站排名第1220
参与人员
官方客服
装潢网
施女士
业主
上海绿通设计装潢有限公司
装修公司
李杰
设计师
马恒志
项目经理
李有玉
工程经理
节点播报
泥木阶段
上海绿通设计装潢有限公司
(装修公司)
2022-10-26 16:27:33
发布于
电脑端
:
原始顶面预制楼板开裂缝,油漆工师傅基础工程做的不错,原缝隙开裂缝都贴了牛皮纸棚带。油漆工师傅在补钉眼施工!一切顺利,大家有事情也是施工群内积极沟通,祝愿业主早日入住新家!
水电阶段
上海绿通设计装潢有限公司
(装修公司)
2022-09-18 16:22:17
发布于
电脑端
:
目前水电已验收,平台监理指出了部分需要整改的项目,本周已进行部分调整,下周会全部完成整改。接下来就是泥木施工阶段啦!
拆改阶段
施女士
(业主)
2022-09-08 20:11:12
发布于
手机端
:
粉墙已完成,目前进入水电阶段。
上海绿通设计装潢有限公司
(装修公司)
2022-08-06 13:25:31
发布于
电脑端
:
8月6日上午,上海绿通空间设计在龙南七村施女士新家举行开工仪式,业主本人、设计师李杰以及马恒志队长都准时到场,在此也祝施女士家开工大吉!我们始终坚持以最优秀的设计方案和精湛的施工工艺服务于每一位装修业主!为业主们提供更优质的服务,后期有任何问题可以在微信群里沟通或来电致绿通,竭诚为你服务!
准备阶段
上海绿通设计装潢有限公司
(装修公司)
2022-07-15 16:45:33
发布于
电脑端
:
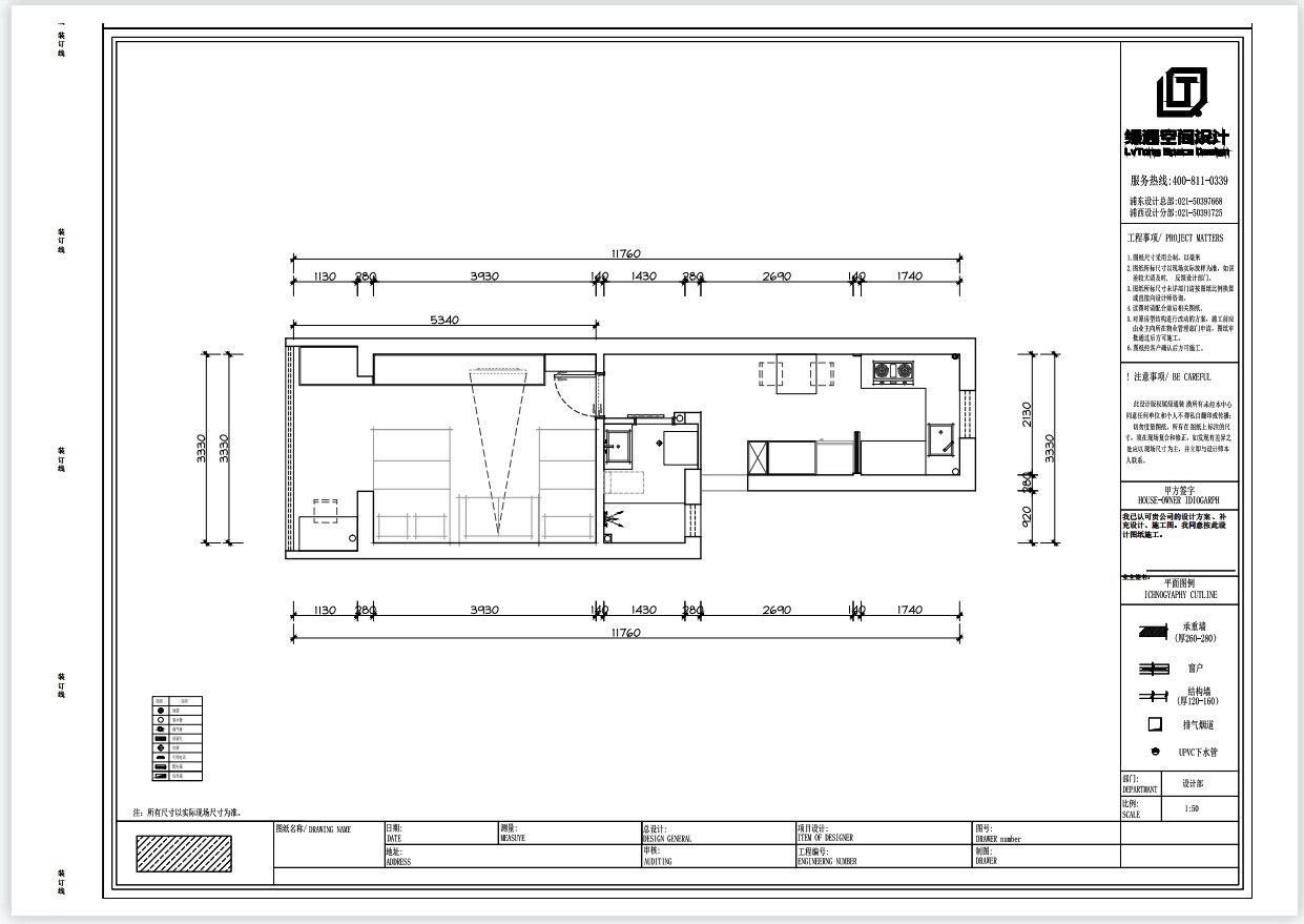
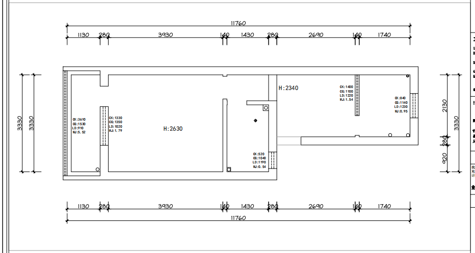
图纸已制作完毕,根据施女士的要求,设计师的方案满足了一家人的生活功能需求,简约原木风格,干净温馨,麻雀虽小五脏俱全。接下来就是等待开工的时间啦!
上海绿通设计装潢有限公司
(装修公司)
2022-07-06 18:50:43
发布于
电脑端
:
七月五号是个好日子,本公司李杰设计师与龙南七村40号施女士签订了装修施工合同,感谢李杰老师的辛苦付出,也非常感谢施女士对于本公司的信任,也非常感谢装潢网老师的签约全程陪同,对预算层层把关,给到了许多非常有用的建议。相信接下来的施工都可以顺顺利利,达到一个满意的装修效果。
官方客服
(装潢网)
2022-07-05 15:03:48
发布于
电脑端
:
业主施女士的装修工地已成功创建,施工方为上海绿通设计装潢有限公司,请及时补充参与人员,并定时播报工地进展。如有疑问请拨打:400-118-8580
