欢迎来到上海装潢网
(业主)
乐先生
|
房屋类型:
|
住宅公寓-小户型
|
承包方式:
|
全包
|
|
预算金额:
|
12.9万元
|
房屋面积:
|
36㎡
|
|
开工日期:
|
2023-07-03
|
完工日期:
|
2023-09-23
|
|
装修风格:
|
简约
|
工地编号:
|
230630150
|
(施工)
上海绽青装饰工程有限公司
联系人:
客服
客服经理
联系电话:
400-118-8580
公司地址:
成山路578号北面6楼整层(靠近东明路恒大生活家)
口碑值:
304
全站排名第315
参与人员
官方客服
装潢网
乐先生
业主
上海绽青装饰工程有限公司
装修公司
朱月超
第三方监理
陈小梁
设计师
徐杨俊
项目经理
节点播报
竣工阶段
朱月超
第三方监理
2023-10-24 06:27:05
发布于
APP
:
施工质量完美,按时交房。
乐先生
(业主)
2023-09-23 10:00:51
发布于
播报小程序
:
给爸妈装修的房子,历史三个月不到终于完工了,通过装潢网找到了绽青装修公司,全程专人负责,细节完善,这个当中虽然有点波折,但都很好的解决的,真的省心,谢谢装潢网,谢谢绽青公司
油漆阶段
乐先生
(业主)
2023-09-22 13:59:52
发布于
播报小程序
:
给爸妈装的房子,历时三个月终于完工了,通过装潢网选择了绽青装饰,全程专人负责细节完善,这当中,虽然有些波折,但都及时处理了,很满意。谢谢装潢网,谢谢绽青装潢
徐杨俊
(项目经理)
2023-08-22 17:24:06
发布于
APP
:
油漆墙顶漆已做好,进入安装阶段,铺地板,接下来安装橱柜、衣柜,套装门和移门等,最后安装灯具和洁具,开关插座面板
徐杨俊
(项目经理)
2023-08-17 21:04:15
发布于
APP
:
油漆墙顶面第二遍面层腻子已批好,接下来干透后准备打磨,刷底漆和上面漆,厨、卫铝扣板吊顶已完成,后期进入安装阶段。
徐杨俊
(项目经理)
2023-08-11 17:40:52
发布于
APP
:
已做到油漆阶段,油漆工墙顶面墙尼找平,墙面贴网格布,贴护角条,热水器已安装,止回阀烟管也已排好,准备安装铝扣板吊顶。油漆工接下来要批面层腻子
泥木阶段
朱月超
第三方监理
2023-10-24 06:22:52
发布于
APP
:
泥工验收通过,施工优秀,可以进行油漆施工
徐杨俊
(项目经理)
2023-08-04 23:02:59
发布于
APP
:
泥木施工阶段,泥工师傅墙地砖铺贴已全部完成,今天泥木验收,橱柜和衣柜,套装门、厂家今天都已精量好了,下一步做美缝,进油漆材料后,油漆工准备进场施工。
乐先生
(业主)
2023-08-04 13:41:45
发布于
播报小程序
:
工期过半,今天泥木验收,装潢网和装修公司的监理都很认真的检查地砖和墙砖,验收合格,感谢装潢网和装修公司,泥工师傅是老师傅,很认真,又是擦瓷砖,又是泡水,谢谢
陈小梁
(设计师)
2023-08-02 10:24:39
发布于
APP
:
泥工施工进行中。防盗门安装完毕后,马上用专用门套保护套给保护起来,贴砖的时候采用十字激光仪进行横平竖直的进行找平,阳角处均采用45度磨斜边对90角,煤气管道瓷砖上预留50管并采用45度弯头连接,确保不锈钢煤气管能够顺利穿墙而过。淋浴房地漏采用回字形铺贴方式,确保以后水流能够最快的速度泄水,感谢泥工师傅用心施工。
徐杨俊
(项目经理)
2023-07-27 21:25:53
发布于
APP
:
水管槽和线管槽都已全部封平,窗户、进户防盗门也已安装完成,师傅在刷第二遍防水,接下来准备铺贴瓷砖
陈小梁
(设计师)
2023-07-27 10:28:55
发布于
APP
:
所有窗户按照设计要求已经安装完毕,防水发泡已经打满,后期再用水泥封固。地面防水一遍已做,在做第二遍防水。泥工材料已经全部到位,进入泥木施工阶段。
水电阶段
乐先生
(业主)
2023-07-23 17:43:30
发布于
播报小程序
:
前天水电验收,正好手机花屏维修去了没办法及时发播报,感谢装潢网介绍的装潢公司,砌墙师傅砌的墙非常地道,前几天家里老水管漏水,物业上门维修,一看这个砌墙师傅砌的墙就夸砌墙师傅砌的好,验收当日正好高温,装潢公司和装潢网监理老师一起来到现场认真检查,还详细和我们说这样装电线好,怎么好。
网站点评:
徐杨俊
(项目经理)
2023-07-21 22:21:11
发布于
APP
:
水电阶段,先跟业主现场确定开关插座定位交底,在墙面上画线施工开槽,预埋暗盒、排线管、布电线,厂家上门布置安装水管并打压8公斤测试。水电已验收,接下来选材下单进瓷砖,下周一安排安装窗户,准备泥工进场施工
拆改阶段
徐杨俊
(项目经理)
2023-07-14 14:29:09
发布于
APP
:
进入拆改阶段,现场砌墙,底部浇筑止水梁,新老墙体结合部采用拉结筋,每50公分一档,入墙15公分,植筋胶植筋。门头横梁不用角铁,直接水泥钢筋现浇横梁,方便后期其它施工。砌墙顶部采用斜砖施工,保证墙体牢固。粉墙后墙体保持垂直度,尽可能减少后期施工麻烦。
陈小梁
(设计师)
2023-07-08 10:00:22
发布于
APP
:
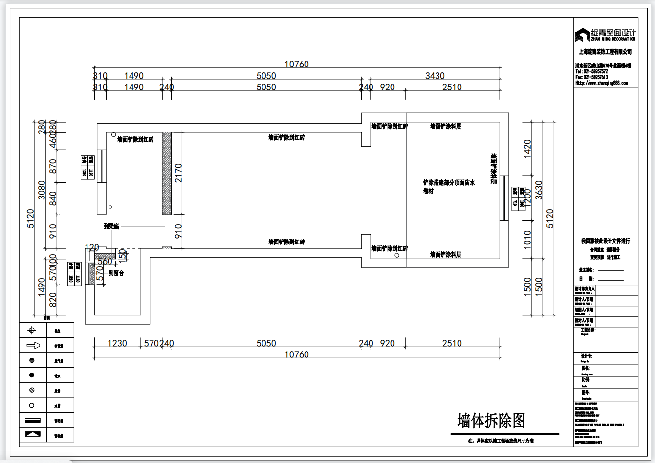
工地拆除已完成,没有动承重墙,墙面全部铲到红砖,顶面铲除到预制板底部。建筑垃圾已清理干净,外运后,用网格遮盖,避免垃圾被风吹走。感谢徐队细心。
准备阶段
上海绽青装饰工程有限公司
(装修公司)
2023-07-03 11:18:27
发布于
电脑端
:
2023年7月3日在这个欢乐日子里上午10:18吉利时刻举办开工仪式;成员有:业主方:乐先生, 乐母;施工方:设计师陈小梁老师,监理章工 ,项目经理徐杨俊;现场随着金锤一响黄金万两,礼花一放家业兴旺!开工仪式已成,明天正式拆旧开始;绽青装饰施工组会尽心尽力施工,让此工地完美落地,让乐先生早日入住自己的新家
陈小梁
(设计师)
2023-07-02 20:16:50
发布于
APP
:
本工地于06.30签订施工合同,邱老师细心负责的为客户详细讲解了预算及注意事项和预算的审核后意见,我司将于07.03进行开工仪式,现场拆旧交底,交底后等物业装修手续审核完毕,我司拆旧团队进入进行拆旧项目,后期每一步的流程及工艺都会在第三方监理的把控及我司监理的把控下完美进行,如果现场有需要沟通,我司工程部会积极跟进,大家合作争取完美落地
官方客服
(装潢网)
2023-06-30 11:32:06
发布于
电脑端
:
业主乐先生的装修工地已成功创建,施工方为上海绽青装饰工程有限公司,播报须知:为了通过播报评比出最美工地,所有施工人员必须参与到播报中,装潢网工地播报上传图片要求横拍清晰照片,每排为五张,两排为十张,依次类推加上文字说明,让装修小白也能一目了然,在播报中的相关人员积极播报,利用好平台来展现自己的舞台,最后取得业主及第三方的好评才是我们真正服务的体现,每一个阶段不得少于两次播报,由装潢网巡视特派员审核播报,如有疑问请拨打:400-118-8580

通过装潢网找到了绽青装修公司,全程专人负责,细节完善,这个当中虽然有点波折,但都很好的解决的,真的省心,谢谢装潢网,谢谢绽青公司。