欢迎来到上海装潢网
    00:20
    00:29
    正在处理 上海寰艺装饰设计工程有限公司虚增面积,虚报项目,虚报单价,恶意增项 - 上海寰艺装饰设计工程有限公司
    微信转发
    投诉编号:320224901
    投诉人可以修改、撤销、补充材料 浏览:20 本投诉于2024-09-02更新
    投诉类型 合同纠纷 投诉人 王** 被投诉单位 上海寰艺装饰设计工程有限公司
    房型 两房 联系地址 上海市虹口区吴家湾路6****** 项目负责人 蔡剑峰
    装修面积 50.3m² 投诉人手机 1379533**** 被投诉人手机 1361183****
    装修造价 14.3052万元 装修形式 半包 处理状态 处理中

    被投诉公司信息

    公司名称
    上海寰艺装饰设计工程有限公司 已核实
    非网络监督会员单位
    法人姓名 蔡剑峰
    统一社会信用代码 913101143125166717 投诉量 1次 查看
    公司类型 有限责任公司(自然人投资或控股) 行业 住宅装饰和装修(E5012)
    登记机关 嘉定区市场监管局 核准日期 -
    注册地址 上海市嘉定区环城路200号3层3446室 成立日期 2014-09-26
    注册地址 建筑装饰装修建设工程设计施工一体化,照明建设工程、风景园林建设工程专项设计,建材、金属材料、电线电缆、五金产品、家用电器、机械设备的销售。【依法须经批准的项目,经相关部门批准后方可开展经营活动】

    投诉详情

    参与者: 焦旻琨(项目经理) 马前进(施工队长) 蔡齐峰(设计师) 蔡齐峰(预算员) 蔡剑峰(法人)
    我的诉求:施工队已经停止施工23天,房东希望尽快结算剩余费用结束合同。在现有工地基础上,完全没做、虚增面积、虚报高价、工程质量严重不过关的部分应当从合同中减除,希望协会介入,在三方认可的情况下,房东支付剩余应支付的费用。


    事情经过如下:
    我于2024年2月与上海寰艺装饰设计工程有限公司委托装修,寰艺方焦旻琨项目经理、设计师/项目负责人蔡齐峰、施工队马前进主管我家装修工程。
    经查验账单,以及实地量房,合同和增项单上存在大量恶意虚增面积、虚报项目和虚报单价,共有五项主要问题。
    罗列如下:

    一:写在合同或增项单并收费,但完全没做的部分,现场都可以直接查验,合计10项10498元。
    (可对照提供的图片里的预算单和增项单核验)

    1 水电工程 下水管及辅料(户外排放) 2450.25
    2 水电工程 排污管及辅料(户外排放) 2369.4
    3 冲筋找平 1712.43
    4 拆建工程门头加固梁 368.96
    5 打洞费 收了50个洞,实际上完全不足 1500
    6 卫生间木基层包门头 没有做 382
    7 水电工程 室外下水管道隔音保温(连管道都没有放哪来的隔音保温?) 700
    8 插座安装 29个点位的插座/开关安装 1015
    9 拆建工程 移门轨道加固 963
    10 保洁费 1008


    二:虚增面积,所有虚增面积部分,都可以在现场测量,共6项合计12176元。
    我家产证面积61平,实测使用面积50平。在粉墙、粉刷上存在严重虚增面积。
    原收费为140平方米,在装修经理、制表人、监理、房东、施工队长所有方人员都在的情况下,让施工队长现场测量尺寸,粉墙面积为103平方米,油漆粉刷面积为101平方米。装修经理自称回去修改报价,但修改后报价仍然按照120平方米报价。
    同时瓷砖铺贴和防水收费也存在虚增面积。具体罗列如下(以下差额按交涉后重新给到房东的120平方米计算):
    (可对照提供的图片里的预算单和增项单核验)

    1粉墙问题 费用1437
    虚增约16平

    2墙面找平问题 费用3274.88
    实测墙体103平方米,并且房子内部是90度角,倾斜只有东西走向墙体,虚增约55平

    3油漆问题 费用5281
    按展开面积,油漆连顶部101平,虚增约40平,客厅主卧的虚增尤其严重。

    4主卧双面门套基层 费用998.49
    主卧门2.1米高,0.8米宽,收费标记为10.9m,实际为5.1m,虚增5.8m

    5拆旧,铲至红砖问题 费用243.8
    和粉墙一样,实测103平,虚增17平

    6新增一遍防水问题 费用941.3
    1:卫生间一共瓷砖到顶全铺才12.5平方米,增项防水第一遍收费变成了16.5平方米,增项防水第一遍收费厨房5.3平又变成了8.5平。
    2:增项新增一遍防水的报价和原合同的2遍防水一样高,应该除以2。

    三:高倍多收恶意增项 合计23197元
    部分报价在原合同中已经收过一次,在增项中又反复再收2次。作为同公司、同装修经理、同设计师、同制表人、同一时间开工(只相差4天)的工地参照,发现对我们未按照统一标准报价,所有虚高可查询同期给别的房东的价格对照。
    (可对照提供的图片里的预算单和增项单核验)

    1、门厅石膏找平 费用262
    门厅根本不存在,墙是新砌的,找平什么,涂料也是我的,竟然还收涂料费。

    2、卧室与卫生间门厅地坪凿除费用2400
    又凿除,又垫高?自己给自己增加工作量啊?

    3钢网陶粒回填费用5720
    1:从未与我们确认过要做该增项,也从未通知要做该增项,一开始直接要求卫生间+厨房共8平方米,收费10500元,在被指出不合理后,再次要求收费5720元。
    2:卫生间、厨房预算里已经写了垫高找平,此处是重复计费
    3:面积算得也不对,单价也明显高出市价

    4水电问题费用7435元
    1:原合同强电+弱电+照明共29个点位,共收费7435元,按照照明点位245/个,强电点位265/个,弱电点位235/个的费用收取。合同写明该费用中包含:A级阻燃电线、阻燃管、波纹管、八角盒、插座面板底盒。
    实际强电+弱电+照明共35个点位,增项单里材料和人工分开全部重复收了一遍新增9350元,电路原合同+增项合计收费16785元。
    2:合同与增项写的是都是A级阻燃线,实际全是普通BV线,材料有差价。
    3:合同与增项写的都是西门子插座面板和底盒,实际底盒为伟星,与西门子有1倍差价,面板为房东自购施耐德。
    4:并且,在已经重复收取2遍费用的基础上。同公司、同装修经理、同设计师、同制表人、同一时间开工的另一家预算
    1.5电线材料+人工=5.8元,我家=8元
    2.5电线材料+人工=6.6元,我家9.5元
    4.5电线材料+人工=8.4元,我家11元
    人工费用里已经包含了开槽,再收取开槽费用,这个费用只对我家收。
    材料报价已经高报2310元。
    经现场实测,电线数量完全没有用到所要求支付费用的数量,例如4.5电线,要求支付150米费用共1650元,实际一共2路,合计70米,剩余80米装修经理无法给出解释在哪里,但已明确交涉告知虚报之后依然要求按150米收取费用。
    电路问题详情可见电路图设计,或现场查验强电箱内排布。


    5吊顶问题 费用 5619
    1:同样的“石膏板高低吊顶”,同公司、同装修经理、同设计师、同施工材料、同时开工的另一处工地价格为85+10.5+105=200.5元一平,收我家的为95+12.5+145=252.5一平,每平单价增加52元。
    2:既然“石膏板高低吊顶”就是双眼皮,又要求重复收取“双眼皮造型费用”1000元
    3:并我家使用的是木制龙骨,不是轻钢龙骨,材料有近1倍差价,但交涉之后依然要求按轻钢龙骨收取费用。
    4:没有以任何形式与房东确认过吊顶图纸,并且房东在装修群里发过全屋装修图纸,和强调过家具位置。使用房东4月份提供的图纸,电路相关工作完全正确,5月份木工吊顶做错,却拖延工期并要求房东承担所有费用。

    6瓷砖问题费用3646.5
    同公司、同装修经理、同设计师、同施工材料、同时开工的另一处工地价格为瓷砖铺贴205/平方米,收我家的为270/平方米。

    7钢梁部分(卫生间门头架了钢梁)费用1200
    这一根钢梁累计收了3次:1钢结构加固2500,钢梁红砖包砌1200,新砌砖墙也又算了这个面积。

    四:收钱了,也做了,工程质量验收不通过
    (可对照提供的视频中的左右和上下分别的视频查验。)
    墙面水泥砂浆粉刷找平,收费17226元+冲筋找平(全屋)1712元 合计18938元
    实际验收结果:
    上下也不平,左右也不平。
    1:客厅东西向亮面墙面的水平都不是90度直角,相差2厘米,不平
    2:客厅墙面垂直向不在同垂直线上,高度1.3米处已相差1厘米,整体相差2厘米,不平

    五:拖延工期
    原计划2024/5/23油漆工程结束,实际上2024/8/10油漆工程结束,共拖延80天,按照合同约定应支付赔偿12000元。
    由于拖延工期,房东原本租房3个月费用,被迫又增加3个月租房费用,每个月4000元,合计12000元。
    (可对照提供的图片里的上海寰艺自己贴在工地门口的工程周期表核验)

    墙面找平上下不平

    上海寰艺自己贴在工地门口的工程周期表

    同公司、同装修经理、同设计师、同施工材料、相差4天开工的另一处工地报价

    同公司、同装修经理、同设计师、同施工材料、相差4天开工的另一处工地报价

    同公司、同装修经理、同设计师、同施工材料、相差4天开工的另一处工地报价

    同公司、同装修经理、同设计师、同施工材料、相差4天开工的另一处工地报价

    同公司、同装修经理、同设计师、同施工材料、相差4天开工的另一处工地报价

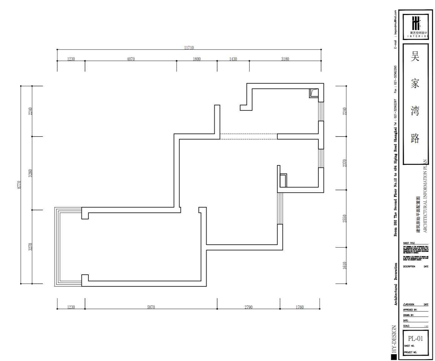
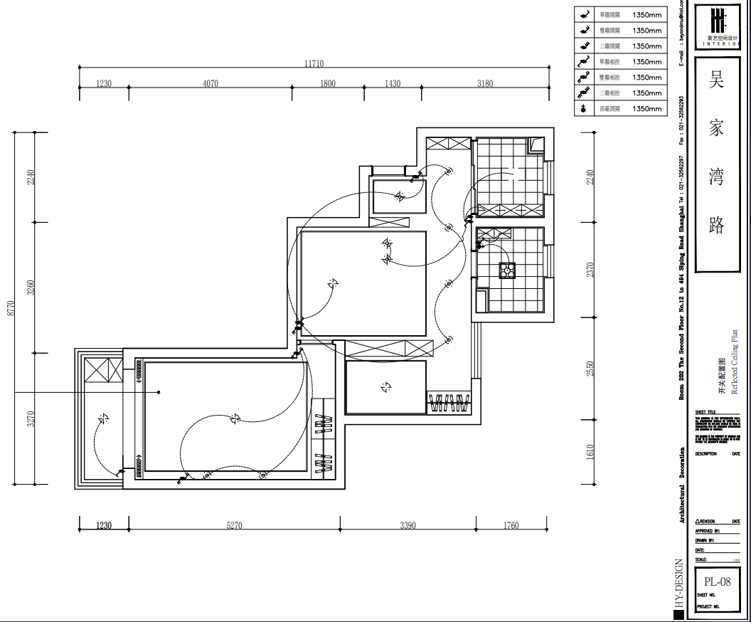
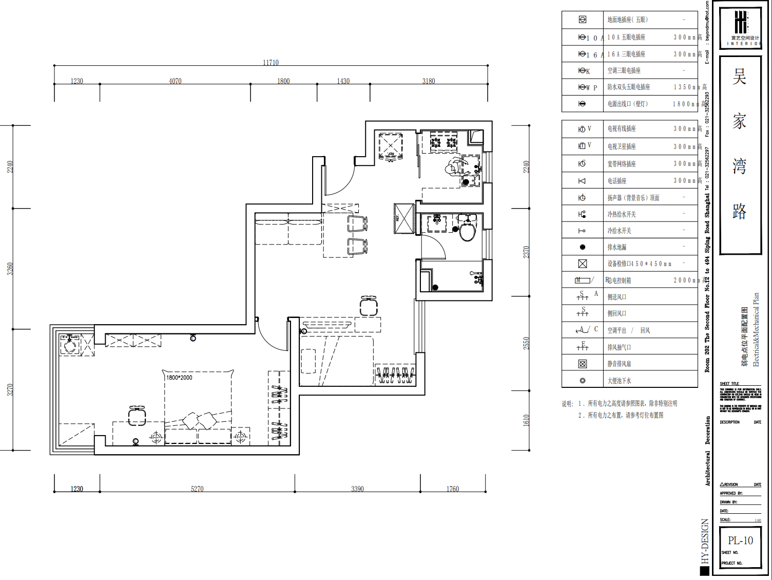
    上海寰艺自己发给我的施工图纸

    上海寰艺自己发给我的施工图纸

    上海寰艺自己发给我的施工图纸

    上海寰艺自己发给我的施工图纸

    上海寰艺自己发给我的施工图纸

    我反复催促,对方态度敷衍并拖延工期的聊天记录

    我反复催促,对方态度敷衍并拖延工期的聊天记录

    我反复催促,对方态度敷衍并拖延工期的聊天记录

    我反复催促,对方态度敷衍并拖延工期的聊天记录

    我反复催促,对方态度敷衍并拖延工期的聊天记录

    我反复催促,对方态度敷衍并拖延工期的聊天记录

    我反复催促,对方态度敷衍并拖延工期的聊天记录

    我反复催促,对方态度敷衍并拖延工期的聊天记录

    我反复催促,对方态度敷衍并拖延工期的聊天记录

    交涉后重新制作,依然问题极大的增项单

    施工图纸

    交涉后重新制作,依然问题极大的第二份报价单

    交涉后重新制作,依然问题极大的第二份报价单

    交涉后重新制作,依然问题极大的第二份报价单

    交涉后重新制作,依然问题极大的第二份报价单

    交涉后重新制作,依然问题极大的增项单

    交涉后重新制作,依然问题极大的第二份报价单

    问题极大的原始报价单

    问题极大的原始报价单

    问题极大的原始报价单

    问题极大的原始报价单

    问题极大的原始报价单

    问题极大的原始报价单

    承诺加紧施工1个月完工实则3个月还未完工的聊天记录

    我一直催着要图纸

    相关评论(0

    写评论

    处理进展

    处理阶段

    变更时间

    变更状态为正在处理 2024-09-02 13:25:42

    12小时前

    尊敬的业主您好!您投诉的上海寰艺装饰设计工程有限公司,该企业非网络监督单位,您的投诉已受理请耐心等待!望企业引起重视,注重企业形象,维护企业口碑。如您需要申请行业监理委员会第三方监理介入调解,请拨打投诉热线400-118-8580。 双方如需了解详情,装饰公司请加投诉中心雷老师微信(微信号13501886065),投诉业主维权请加王老师微信(微信号13311711185),便于查询后续的进展。 树立行业文明,建立公正权威,感谢您对上海装潢网的信赖! 2024-09-02 13:26:52

    12小时前

    调解老师联系了乙方,请其尽快处理投诉,如需要帮助联系我们。 2024-09-02 14:38:03

    12小时前
    树立行业文明建立公正权威
    用网络媒体公众力
    维护业主合法权益
    全国装修315投诉热线免费电话:
    -- 400-118-8580 --
    撤销投诉